bouwgrond te KRUIBEKE (9150)

€ 355.000

Algemeen
Prijs
:
€ 355.000
Adres
:
Kronkelstraat , 9150 KRUIBEKE
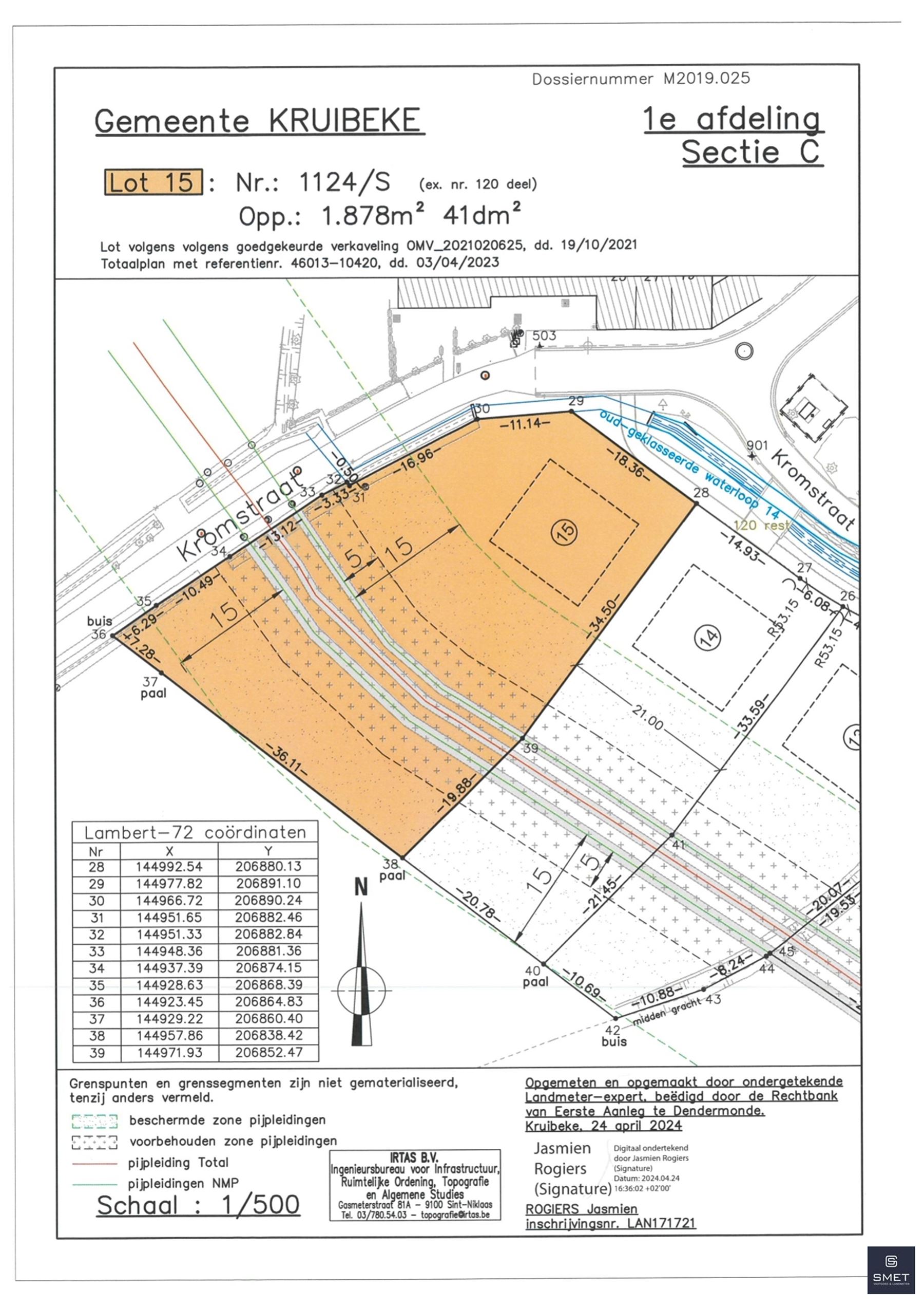
Grondoppervlakte
:
1878 m²
Omschrijving

2 PRACHTIGE BOUWGRONDEN VOOR OPEN BEBOUWING IN KRUIBEKE     (1 LOT VERKOCHT)

 

In een uiterst rustige en landelijke omgeving in Kruibeke bieden wij twee naast elkaar gelegen bouwgronden aan, ideaal voor open bebouwing.

 

  • Lot 15: ± 1.878 m², gelegen in de Kronkelstraat                       -  PRIJS 355.000,- EUR - In Optie
  • Lot 14: ± 1.137 m², gelegen in de Kamiel van Gheemstraat     --> VERKOCHT

 

 

Beide percelen zijn zuidwest georiënteerd, wat garant staat voor optimale lichtinval en zonnige tuinen.

Dankzij de ruime oppervlaktes zijn er tal van mogelijkheden voor het realiseren van een comfortabele, vrijstaande woning met tuin.

 

De ligging combineert het beste van twee werelden: landelijke rust en privacy, met tegelijk een vlotte verbinding naar de autosnelweg en omliggende centra.

 

Troeven op een rij:

- Geschikt voor open bebouwing

- Ruime percelen

- Zuidwest oriëntatie

- Rustige, groene omgeving

- Goede bereikbaarheid.

 

Op het perceel rust een erfdienstbaarheid voor ondergrondse leidingen. Verdere toelichting en technische informatie zijn op eenvoudig verzoek beschikbaar.

 

Interesse of wenst u graag meer info omtrent de stedenbouwkundige inlichtingen?

Gelieve ons dan te contacteren op het nummer 03 775 41 88 of mail naar christel@vastgoed-smet.be    //   www.vastgoed-smet.be

                             

 De verstrekte gegevens/informatie (zowel online als gedrukt) worden vrijblijvend verstrekt, enkel ter inlichting, zonder contractuele verbintenis of garantie van onzentwege en kunnen op ieder ogenblik gewijzigd worden.

 

Financiële Info
Energie certificaat
E spec
:
In aanvraag


Stedenbouwkundige informatie
Voorkooprecht
:
In aanvraag
Bouwvergunning verkregen
:
In aanvraag
Dagvaarding en herstelvordering
:
In aanvraag
Verkavelingsvergunning
:
In aanvraag
Bestemming
:
In aanvraag
Comfort
Lasten
Google kaart
De kaart vergroten
Uitzicht op straat